Search

407 BAY STREET,

Property Overview - House For sale

Price$ 1 590 000On the Market20399 days
MLS® #S12515842TypeHouse
Bedrooms5 BedBathrooms4 Bath
Postal CodeL3V3X5
Property SizeBuilding Size0

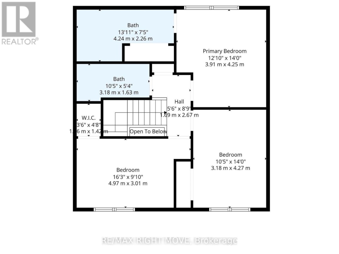
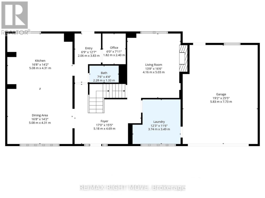
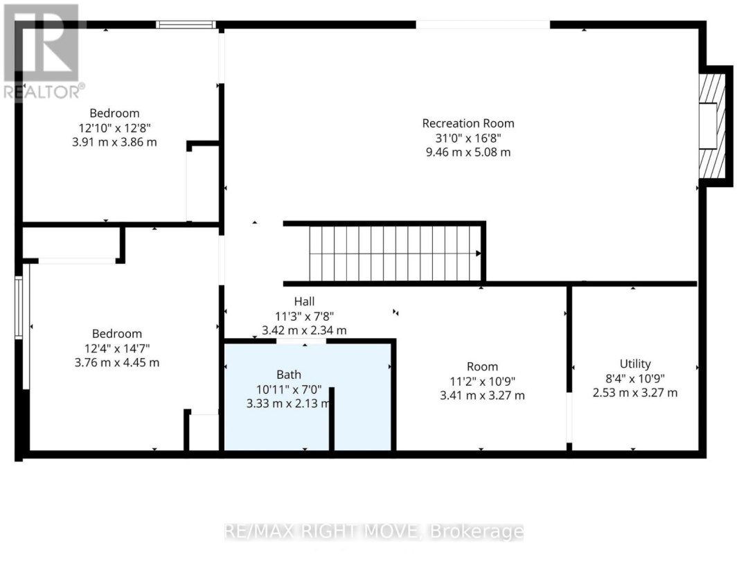
Welcome to 407 Bay Street, Orillia - located in one of the city's most desirable neighbourhoods. This stunning custom-built 5-bedroom, 3.5-bath, two-storey home showcases exceptional craftsmanship, modern design, and high-end finishes throughout. The main level offers an open-concept dining area and a gorgeous farmhouse-style kitchen featuring a custom oak island, quartz countertops, floating shelves, and a pot filler. The living room boasts a beautiful brick accent wall and a gas fireplace, complemented by an office, 2-piece bath, and a spacious laundry/mudroom with garage access and a walkout to the rear deck. Upstairs, you'll find three bedrooms, including a bright primary suite with a 3-piece ensuite, plus an additional 4-piece bath. The fully finished lower level features a large recreation room with a gas fireplace, wet bar/kitchenette, walkout to the backyard, two additional bedrooms, a 3-piece bath, fitness area, utility room, and storage. The backyard is perfect for family enjoyment, backing onto scenic recreational trails and featuring an in-ground pool with a newer liner and concrete surround. This home has been extensively updated with premium finishes - custom millwork, built-in cabinetry, ship lap details, cedar accents, stunning tile work, upgraded fixtures, and elegant brass hardware. Additional updates include a metal roof, new main and second level windows, composite decking, Regal railing and more. Located across the street from Lake Couchiching, water access from Fittons Rd or Borland St, just minutes to downtown, Couchiching Beach Park, boat launch, shopping and more. A truly remarkable home that must be seen in person to be appreciated.

Land Details

Size Frontage83
Size Depth214 ft
Lot size83 x 214 FT ; irr
Ownership TypeFreehold
Zoning DescriptionR1

Building Details

TypeHouse
Property TypeSingle Family
Bathrooms Total4
Bedrooms Above Ground3
Bedrooms Below Ground2
Bedrooms Total5
Cooling TypeCentral air conditioning
Exterior FinishBrick, Vinyl siding
Foundation TypeBlock
Half Bath Total1
Heating FuelNatural gas
Heating TypeForced air
Utility WaterMunicipal water

Rooms

Main levelBathroom2.28 m x 1.33 m
View Property on Interactive MapDriving Directions (Google Maps)


This listing of a Single Family property For sale is courtesy of DONALD GORDON STOUTT from RE/MAX RIGHT MOVE