Search

117&121 RICHARD STREET,

Property Overview - House For sale

Price$ 799 000On the Market20405 days
MLS® #S12427989TypeHouse
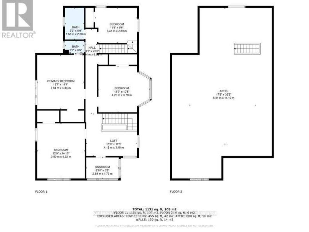
Bedrooms4 BedBathrooms3 Bath
Postal CodeL0K2A0
Property SizeBuilding Size0

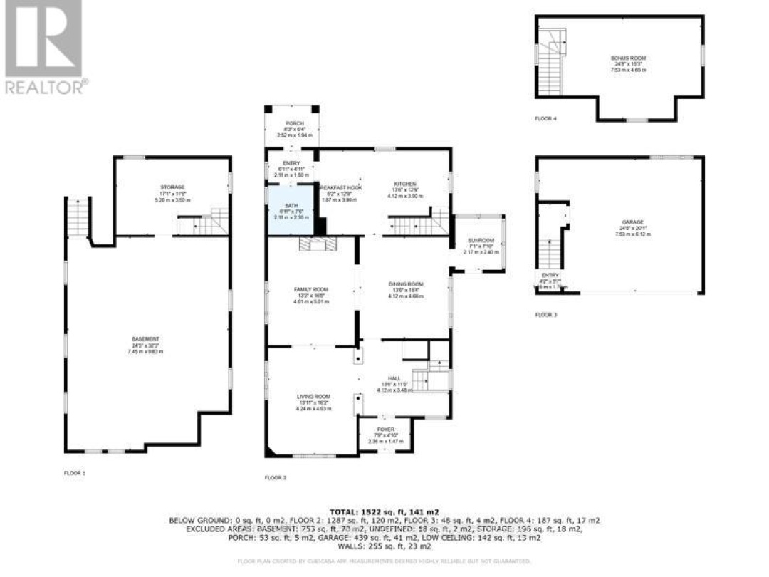
Nestled on two beautifully landscaped corner lots, this timeless 1915 Edwardian home feels like a private sanctuary. From the moment you arrive, the lush gardens, wraparound veranda, and classic architecture invite you in. Inside, you'll find rich woodwork, stained glass windows, pocket doors, a grand staircase, and a maid's staircase to the kitchen - all hallmarks of a bygone era brought to life with thoughtful, modern updates. The updated kitchen and bathrooms feature quartz countertops and tasteful upgrades that blend seamlessly with the home's historic character. Upstairs, all bedrooms boast walk-in closets with lighting, and the second-storey sunroom offers peaceful lake views and unforgettable sunsets. Venture up one more level and discover a large third-floor attic with potential to create a spectacular loft or studio space. The custom-built garage with a stylish loft provides extra living space or a dream workspace! Cozy up through the seasons in your outdoor wood fire sauna and enjoy the durability of quality metal roofing on the house, garage, and sauna. Located just a 5-minute walk to Georgian Bay and local amenities, and you're just 25 minutes from Orillia and 40 minutes from Barrie. This rare gem is truly a place to be experienced.

Land Details

Size Frontage132
Size Depth176 ft ,2 in
Lot size132.6 x 176.2 FT ; 132.55ft x 167.82ft x 134.98ft x 176.21
Ownership TypeFreehold
Zoning DescriptionR2

Building Details

TypeHouse
Property TypeSingle Family
Bathrooms Total3
Bedrooms Above Ground4
Bedrooms Total4
Cooling TypeCentral air conditioning
Exterior FinishBrick
Foundation TypeStone
Half Bath Total1
Heating FuelNatural gas
Heating TypeForced air
Utility WaterMunicipal water

Rooms

Main levelSunroom2.4 m x 2.17 m
View Property on Interactive MapDriving Directions (Google Maps)


This listing of a Single Family property For sale is courtesy of VICTORIA BADGER from Keller Williams Experience Realty