Search

4 & 8 BARTLETT DRIVE,

Property Overview - House For sale

Price$ 1 849 000On the Market20426 days
MLS® #X12440937TypeHouse
Bedrooms4 BedBathrooms4 Bath
Postal CodeP2A2W8
Property SizeBuilding Size0

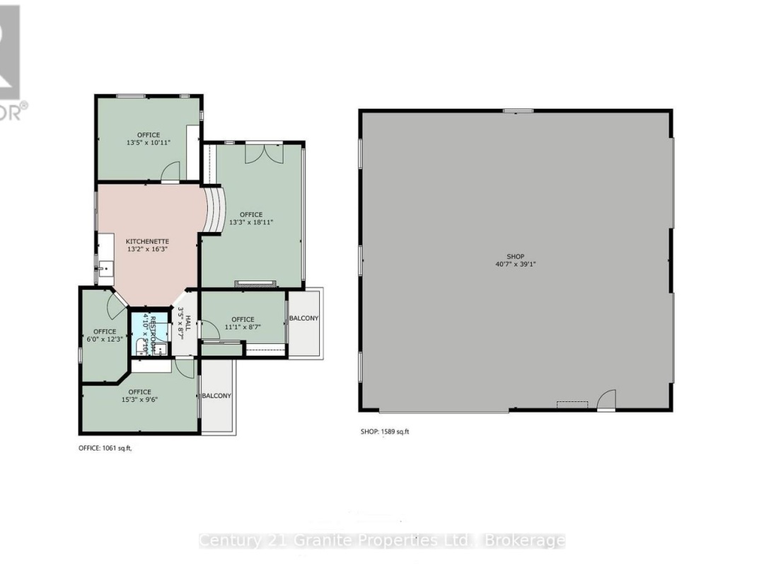
Commercial and Residential compound in the desirable Bartlett Springs Subdivision, less than one minute from the Oastler Lake Boat Launch and five minutes to Parry Sounds Shopping Area. Situated on a paved year-round municipally maintained roadway. This property is comprised of two separately deeded properties. Commercial Property: Has a very large legal non-conforming road sign and is situated on the corner of Oastler Park Drive with excellent exposure. The Modern Office building is approximately 1,100 sqft and is comprised of a Reception/Waiting Area, Boardroom/Lunchroom, Four Formal Offices and a Two-Piece Washroom. There is ample parking for clients and staff. The 40' X 40' Industrial Style Shop was Built in 2022. It has Three Overhead Doors (1-14' x 10' & 2-12' x 10' doors), Vaulted Ceilings, Natural gas-fired in-floor radiant heat and a Large Gravel Parking/Yard Area. The Residential component is comprised of a completely renovated Valhalla Style home. It has approximately 2,700 sqft feet of finished area, spanning three levels and it has been extensively renovated. In floor heat in all the bathrooms and the entry foyer. The main floor is comprised of open concept kitchen and dining area, great room with vaulted ceilings, two-piece washroom and an office (could easily be utilized as a bedroom, as it has a closet and "cheater" access to the washroom). The second level is comprised of a second bedroom, a main four-piece bathroom and a primary bedroom with walk-in closet and three-piece ensuite bathroom. The lower level is comprised of a media / family room, guest bedroom, laundry room and four-piece bathroom with walk-in shower and soaker tub. The 30 X 40 detached "Man Cave" is heated, insulated and finished with commercial grade epoxy floor and high-quality shelving and cabinets. Extensively landscaped, with gardens, a pond and a volleyball court. Fibre Optic internet available. HST applicable only to commercial property. Taxes combined for both properties.

Land Details

Size Frontage432
Size Depth340 ft
Lot size432 x 340 FT
Ownership TypeFreehold
Zoning DescriptionC3: Highway Commercial & Rural Residential

Building Details

TypeHouse
Property TypeSingle Family
Bathrooms Total4
Bedrooms Above Ground3
Bedrooms Below Ground1
Bedrooms Total4
Cooling TypeCentral air conditioning
Exterior FinishWood
Foundation TypeBlock
Half Bath Total1
Heating FuelNatural gas
Heating TypeForced air
Utility WaterDrilled Well
View Property on Interactive MapDriving Directions (Google Maps)


This listing of a Single Family property For sale is courtesy of CURTIS PAYERL from Century 21 Granite Properties Ltd.