Search

307 LINWOOD AVENUE,

Property Overview - House For sale

Price$ 539 900On the Market20412 days
MLS® #S12443028TypeHouse
Bedrooms4 BedBathrooms1 Bath
Postal CodeL3V2W8
Property SizeBuilding Size0

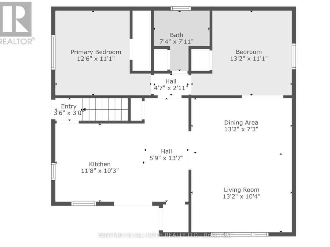
Great opportunity for first-time buyers or those looking to downsize! This charming 2+2 bedroom home sits on a beautiful corner lot surrounded by mature cedars, offering both privacy and curb appeal. Inside, you'll find a spacious living room with modern touches throughout and a bright, open layout ideal for everyday living. The fully finished basement features brand new carpet, a large recreation room, and two additional bedrooms perfect for guests, a home office, or extra family space. Centrally located just minutes from Soldiers Memorial Hospital and the downtown core, and within walking distance to McKinnell Square Park and a variety of amenities, this home combines convenience with comfort. Add in low property taxes, and this move-in-ready gem is one you wont want to miss - quick closing available!

Land Details

Size Frontage45
Size Depth115 ft ,4 in
Lot size45.8 x 115.4 FT
Ownership TypeFreehold

Building Details

TypeHouse
Property TypeSingle Family
Bathrooms Total1
Bedrooms Above Ground2
Bedrooms Below Ground2
Bedrooms Total4
Architectural StyleRaised bungalow
Cooling TypeCentral air conditioning
Exterior FinishVinyl siding
Heating FuelNatural gas
Heating TypeForced air
Utility WaterMunicipal water

Rooms

Main levelBedroom4.02 m x 3.38 m
View Property on Interactive MapDriving Directions (Google Maps)


This listing of a Single Family property For sale is courtesy of ALEX ELIEFF from CENTURY 21 B.J. ROTH REALTY LTD.