Search

8254 93 HIGHWAY,

Property Overview - House For sale

Price$ 574 900On the Market20429 days
MLS® #S12443825TypeHouse
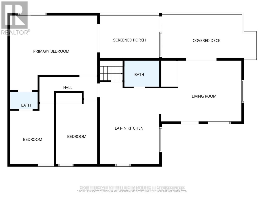
Bedrooms3 BedBathrooms2 Bath
Postal CodeL0K2E0
Property SizeBuilding Size0

Welcome to this 3-bedroom, 2-bathroom raised bungalow in the heart of Wyebridge. Situated on a large lot with excellent visibility along Highway 93, this property offers both comfortable living and incredible business potential. The main floor features a bright, practical layout with spacious living areas, well-suited for daily life or a home-based office. Walk out from the primary bedroom to a private, fully fenced backyard with a covered porch, ideal for entertaining or simply relaxing outdoors. A backup generator provides peace of mind, while ample parking and direct highway exposure make this an excellent choice for an at-home business. Conveniently located just minutes from Midland, Georgian Bay and local amenities, this home presents a rare chance to combine lifestyle and work in one property. Don't let this amazing opportunity pass you by!

Land Details

Size Frontage82
Size Depth132 ft
Lot size82.5 x 132 FT
Ownership TypeFreehold
Zoning DescriptionHighway Commercial C5-3

Building Details

TypeHouse
Property TypeSingle Family
Bathrooms Total2
Bedrooms Above Ground3
Bedrooms Total3
Architectural StyleRaised bungalow
Cooling TypeCentral air conditioning
Exterior FinishVinyl siding
Foundation TypeStone, Poured Concrete
Half Bath Total1
Heating FuelNatural gas
Heating TypeForced air
Utility WaterMunicipal water, Sand point

Rooms

Main levelBedroom 33.86 m x 2.5 m
View Property on Interactive MapDriving Directions (Google Maps)


This listing of a Single Family property For sale is courtesy of RYAN ALLARY from EXIT REALTY TRUE NORTH