Search

68 WALMAC SHORES ROAD,

Property Overview - House For sale

Price$ 395 000On the Market20388 days
MLS® #X12466109TypeHouse
Bedrooms3 BedBathrooms1 Bath
Postal CodeK0M1A0
Property SizeBuilding Size0

BEAUTIFUL BOBCAYGEON! Escape to tranquility with this cozy, well-maintained cottage nestled just steps from the shores of beautiful Pigeon Lake in the heart of the Kawarthas. Perfect for weekend getaways or a peaceful seasonal retreat, this charming 3-bedroom cottage offers the ideal blend of rustic charm and modern comfort. There is also a spacious bunkie for visitors or a studio/office. Surrounded by mature trees and natural beauty, the cottage features a bright and airy open-concept living area with numerous windows that bring the outdoors in. Enjoy your morning coffee on the deck or unwind in the evening with lake breezes and the call of loons in the background. Just a short walk to public lake access and minutes to Bobcaygeon, this property provides easy access to boating, fishing, hiking, and everything cottage country has to offer. Whether you're looking for a peaceful escape, an investment, or a place to make family memories, this gem near Pigeon Lake is a rare find. Key Features:3 cozy bedrooms, 1 bath. Open-concept kitchen and living space. Propane fireplace with electric baseboard back up. Spacious deck and firepit area. Quiet, tree-lined lot with privacy. Short stroll to the lake and boat launch. Year-round access via municipal road. Don't miss your chance to own a slice of Kawartha Lakes paradise! BONUS! Truly turnkey with most furniture included and a boat with 9.9 HP motor. All you need to enjoy the summer.

Land Details

Size Frontage79
Size Depth123 ft ,3 in
Lot size79.5 x 123.3 FT
Ownership TypeFreehold
Zoning DescriptionR1

Building Details

TypeHouse
Property TypeSingle Family
Bathrooms Total1
Bedrooms Above Ground3
Bedrooms Total3
Architectural StyleBungalow
Cooling TypeNone
Exterior FinishHardboard
Foundation TypeBlock, Concrete
Heating FuelElectric
Heating TypeBaseboard heaters

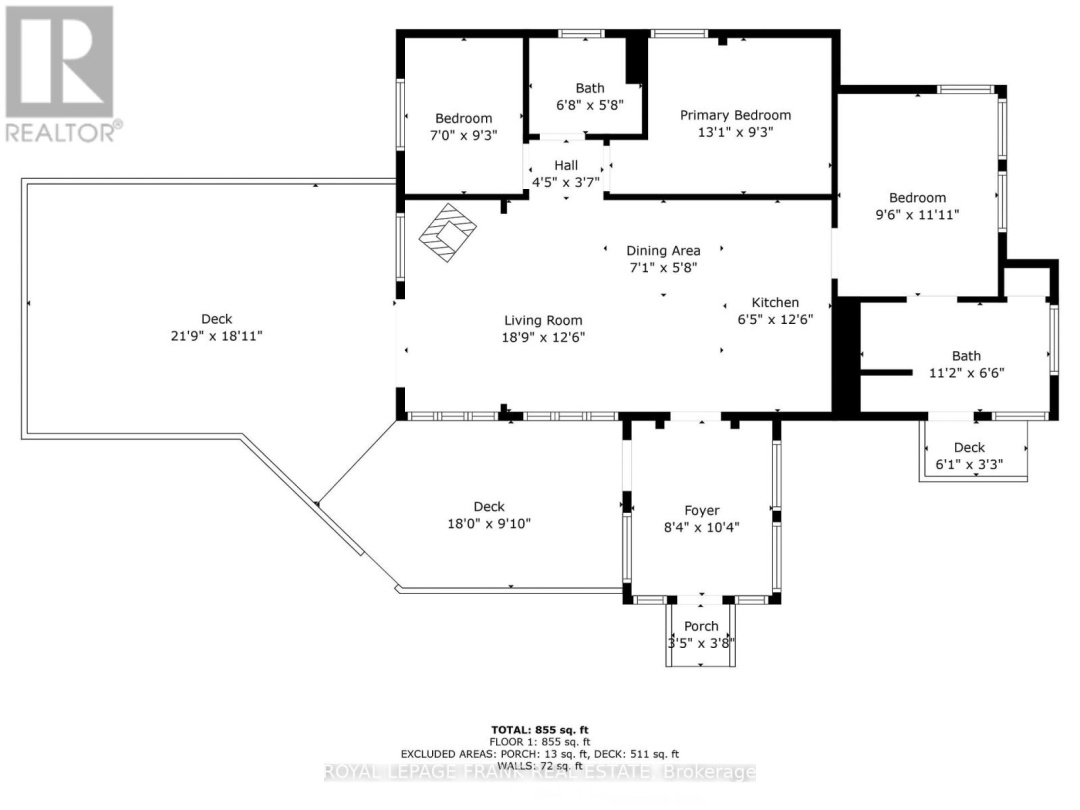
Rooms

Main levelBathroom1.98 m x 1.7 m


This listing of a Single Family property For sale is courtesy of BETH GILROY from ROYAL LEPAGE FRANK REAL ESTATE